Nový RD 5+kk na pozemku 952m2 Citoliby
101 m2 / 5+kk / Praha
8 510 000 Kč
(cena včetně DPH)
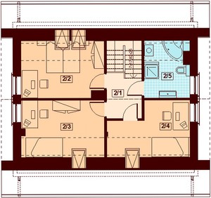
Dispozice: 5+kk
Plocha užitná: 101 m2
Plocha pozemku: 952 m2
Plocha zastavěná: 65 m2
Budova: cihlová
Číslo jednotky:
Energetický štítek: B
Nový rodinný dům Avila o dispozici 5+kk, užitné ploše 101m2, na pozemku o výměře 952m2 v městysu Citoliby nedaleko Loun. Skvělé bydlení v souladu s přírodou a zároveň s dostupností služeb a občanské vybavenosti. Snadná dostupnost Prahy po D7 včetně PID. V přízemí najdete obývací pokoj s kuchyní, pracovnu a technickou místnost. Obytný prostor je oživen otevřeným schodištěm. V podkroví jsou umístěny tři ložnice a velká koupelna. Dům nabízí pohodlné bydlení pro pár nebo rodinu. Svým provedením se hodí do nízké až středně vysoké zástavby s rovinatým až mírně svažitým terénem. Celý dům je zastřešen sedlovou střechou. Podlahové topení s tepelným čerpadlem v ceně. Pro pohodlné užívání domu Vám navrhneme optimální způsob vytápění a větrání pro využití dotačních titulů. Dále návrh interiéru včetně úpravy exteriéru a mnoho dalších doprovodných služeb pro snadné jednání s bankou v rámci sjednání hypotéčního úvěru a jeho následného čerpání. Možnost pasivního standardu. Ideální kombinace bydlení v klidu a přírodě na čerstvém vzduchu s výbornou dostupností. Městys disponuje širokou občanskou vybaveností, obchod, mateřská a základní škola se školní jídelnou a družinou, pošta, restaurace atd.







